Located in the heart of the vibrant district of Sheung Wan in Hong Kong, The Jervois is a sleek 34-storey glass tower that contains 49 suites for a total 4,300 square meter of development. It is operated as a serviced apartments and boutique hotel for short or long stays.
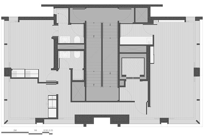
The Jervois’s incredibly slender shape rises 110m above the street. Each floor consists of only two one-bedroom suites, two elevator lobbies and a pair of scissor stairs for the typical floors. The two one-bedroom suites are combined into one large two-bedroom suites per floor for each of the top 5 floors.
All the units are enclosed with floor to ceiling windows; on three sides for the one-bedroom suites and on four sides for the two-bedroom suites. Those windows truly extend the impression of space inside to outside and open breath-taking views on Hong Kong. Walking thru the suites is like traveling thru the city and the two-bedroom suites boast views on the Peak, views on the Victoria Harbour and views on the Hong Kong financial district from each unit.
A key element of the design was to provide a simple yet elegant exterior that articulate the façade from one street to another and give a gentle building scale at the pedestrian level. This was achieved by expressing the uses of the spaces in the shape of the building, breaking down the volume and using a limited number of material: Glass, White aluminium and black ceramic.
The Interiors were elegantly designed by Studio Christian Liaigre in Paris. They are simple and pure. The palette is made of earthy tone, wood and marble that successfully complement the Architecture.
Awards:
Wallpaper* Magazine Best Business Hotels 2012
Project Facts:
Location:
Program:
Units:
Height:
Client:
Architectural design:
Authorized Person:
Interior Design:
Status:
Hong kong
Serviced Apartment Tower
49 apartments, 4,300 m2
35 floors (118m)
National Properties
NEDELEC
MLA
Christian Liaigre
Completed in 2012
Podium
North Facade
North Facade
West Facade
Detail of the facade
Tower
Interior View
One-bedroom Suite. Interior by Christian Liaigre
Two-bedroom Suite. Interior by Christian Liaigre
One-bedroom suite
Two-bedroom suite
Podium elevation